O nejvhodnější návrh na uzavření smlouvy na pronájem stánku Občerstvení U Supa (ukončeno)
25. 08. 2015
Veřejná soutěž
Zoologická zahrada hl. m. Prahy vyhlašuje veřejnou soutěž s názvem „O nejvhodnější návrh na uzavření smlouvy na pronájem stánku Občerstvení U Supa“.
Kontaktní osoba: Ing. Eliška Pellešová, e-mail: pellesova@zoopraha.cz., mobil: +420 725 064 847
Prohlídka prostor je možná v úterý 1. 9. 2015 a v úterý 8. 9. 2015 vždy ve 14.00 hod. Sraz účastníků prohlídky je u hlavního vchodu do zoologické zahrady.
Lhůta pro podávání návrhů počíná končí ve čtvrtek 17. 9. 2015 v 10.00 hodin.
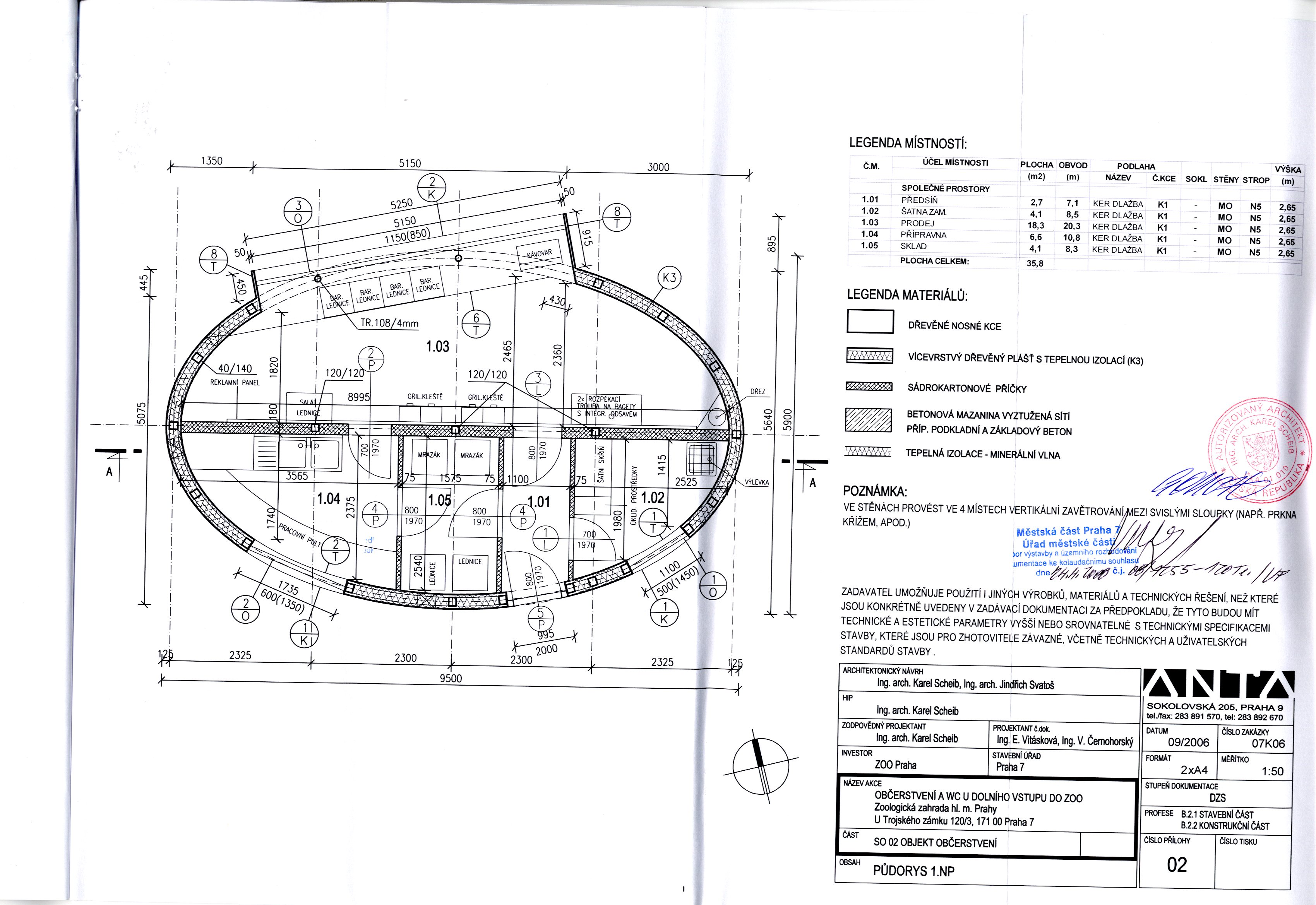
Přílohy:
- Podmínky soutěže_U Supa.docx
- Občerstvení U Supa-půdorys.jpg
- Příloha č.1_U Supa.docx
- Příloha č.2_Závazný návrh smlouvy_U Supa.docx
- U supa - polohopis.pdf
- U supa - situace 1 ku 250.pdf
- Veřejná soutěž text.docx
- Vzor Čestné prohlášení základní kvalifikační předpoklady.docx
- Majetek_U Supa.xlsx
Dodatečné informace:
- č. 1
Informace o návštěvnosti (zdroj: Zpráva o plnění rozpočtu 2014 uveřejněná na www.zoopraha.cz) najdete ZDE.
Hodnocení nabídek:
Nyní používáte mobilní verzi webových stránek www.zoopraha.cz. Pokud chcete zobrazit plnou verzi, klikněte zde.








