O nejvhodnější návrh na uzavření pachtovní smlouvy na restauraci Gaston (ukončeno)
12. 01. 2018
Veřejná soutěž
Výzva k podání nabídky ve Veřejné soutěži „O nejvhodnější návrh na uzavření pachtovní smlouvy na restauraci Gaston“
Předmětem Veřejné soutěže je uzavření pachtovní smlouvy s vítězem soutěže, jejímž účelem je zajištění provozování restaurace Gaston v areálu Zoo Praha a zajišťování stravovacích potřeb pro návštěvníky zoologické zahrady za současného dodržení podmínek stanovených vyhlašovatelem v soutěžních podmínkách.
Veškeré obchodní a platební podmínky jsou podrobně vymezeny v návrhu pachtovní smlouvy, který tvoří Přílohu č. 1 této Výzvy („Návrh smlouvy“).
Veškeré informace o podmínkách výběrového řízení najdete ve Výzvě k soutěži a ostatní přílohách.
Kontaktní osobou je Mgr. Lucie Moravčíková, tel. +420 295 565 120, e-mail: lucie.moravcikova@otidea.cz
Dotazy možno přijímat nejpozději do 25.01.2018
Termíny prohlídek předmětu pachtu: 22. 01. 2018, sraz v 10.00 hod. u hlavního vchodu do Zoo Praha. Zodpovědná osoba za prohlídky: Ing. Eliška Pellešová, tel. +420 725 064 847.
Termín pro odevzdání nabídek: do 02.02. 2018 do 10.00 hod. na adresu Vyhlašovatele – Zoologická zahrada hl. m. Prahy, U Trojského zámku 120/3, PSČ 171 00 (provozní doba podatelny je každý všední den od 7.00 do 10.00 a od 12.00 do 15.00).
Přílohy:
- Vyzva_k_Veřejná_soutěži_podmínky.doc
- Krycí list_vzor.doc
- Gaston Priloha_1_Navrh_smlouvy.docx
- Priloha_2 Gastronický_koncept.docx
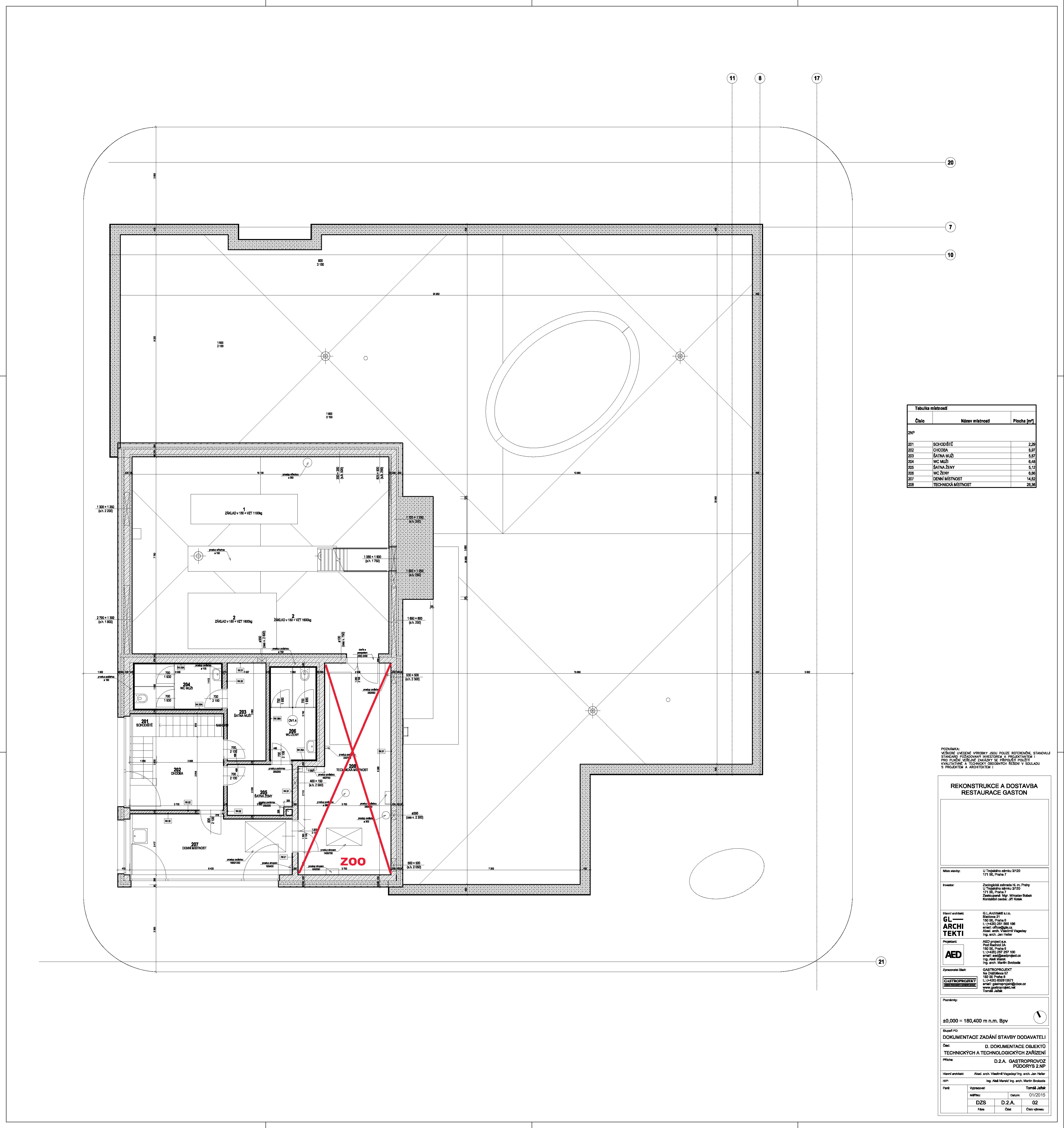
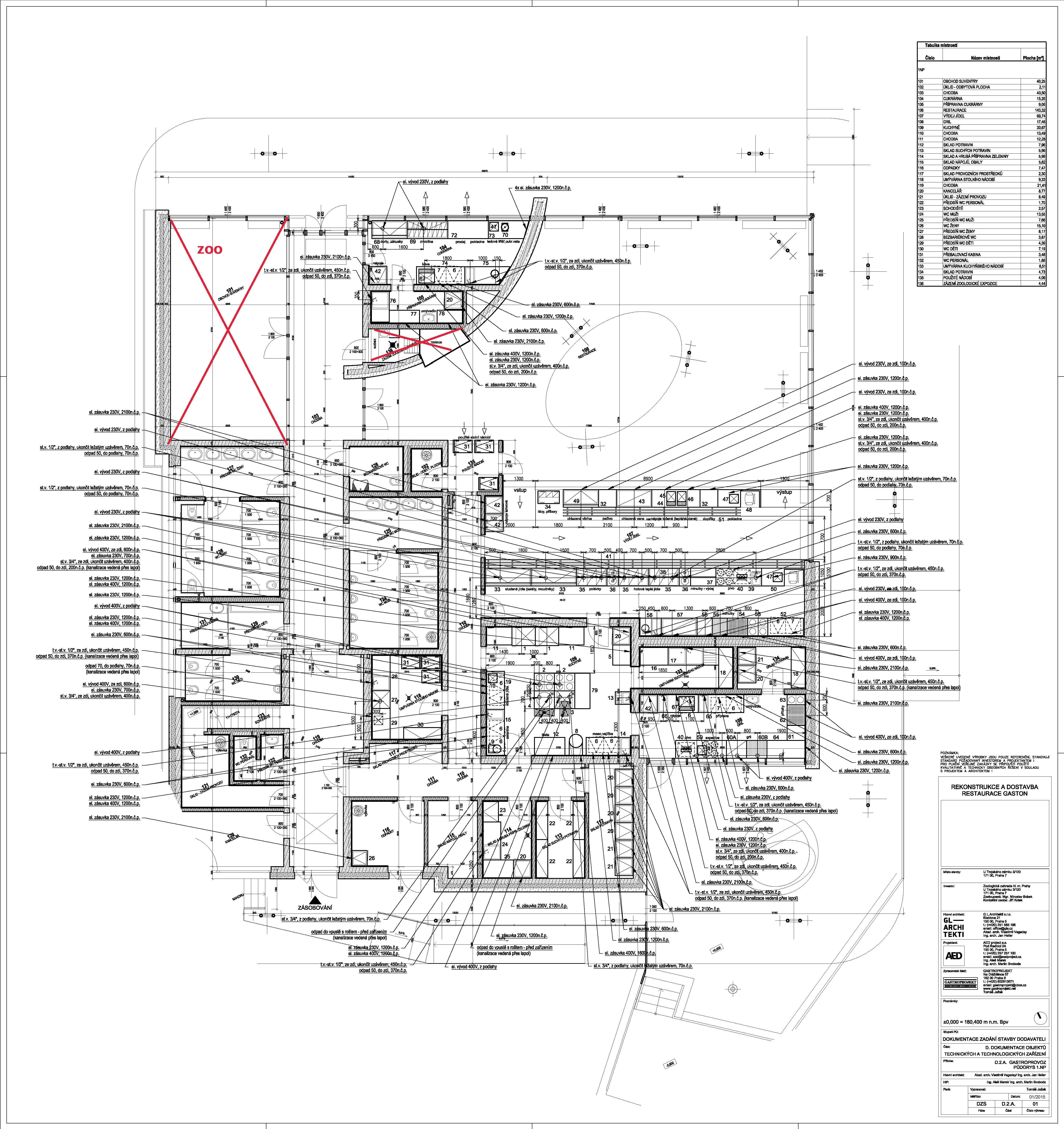
- Priloha_3a_pudorys_1NP.jpg
- Priloha_3b_2NP.jpg
- Přiloha_4_Popis předmětu pachtu nájmu.docx
- Příloha_5_Soupis_vybavení_predmetu_pachtu_najmu.doc
- Priloha_ 6_vybaveni_dodavka_pachtyre najemce.doc
- Priloha_7a_Rozmisteni_nabytku_jidelna.pdf
- Příloha_7b_Rozmisteni_nabytku_terasa.pdf
Ukončení výběrového řízení - rozhodnutí:








